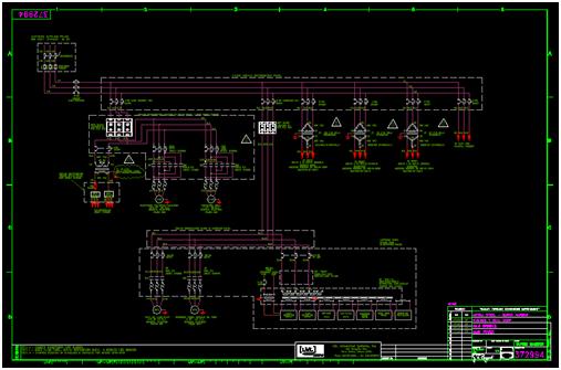
AutoCad Services

Power Distribution

Our engineers are capable of developing an AutoCad set of prints utilizing Autodesk's AutoCad software. We will deliver to you your prints on any media utilizing our plotter and laser printers. If you prefer your own set, we will transfer the files by multiple media means including, E-mail, floppy, or CD-Rom.

Panel Design